Casa introvertida

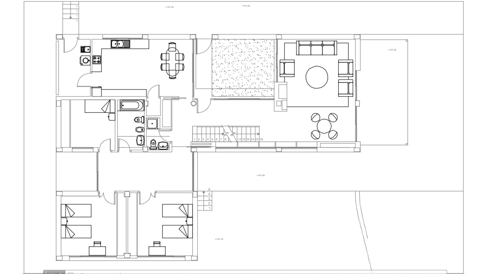
Entre limoneros se emplaza esta vivienda introvertida, con la privacidad como directriz, con vecinos alrededor, desorganizados. Se accede a través de un patio interior, y hay más patios dentro del plano. Las tardes se pasan en la piscina con los amigos.

  • Privado
  • La Arboleja
  • Construido
  • Propia.
¿Quieres hablar sobre tu proyecto?